- Главная
- Техподдержка
- Статьи
- Практические вопросы поквартирного учета тепловой энергии и воды
Практические вопросы поквартирного учета тепловой энергии и воды
Федеральным законом № 261-ФЗ от 23.11.2009 (в редакции 20.12.2014 г.) «Об энергосбережении и о повышении энергетической эффективности» установлено, что «Многоквартирные дома, вводимые в эксплуатацию с 1 января 2012 г. после осуществления строительства, реконструкции, должны быть оснащены дополнительно индивидуальными приборами учета используемой тепловой энергии…» (ст.13 п.7).
Для того, чтобы это положение не воспринималось как дружеская рекомендация, в Закон включены и штрафные санкции: «Несоблюдение при проектировании, строительстве, реконструкции, капитальном ремонте зданий, строений, сооружений требований энергетической эффективности, требований их оснащенности приборами учета используемых энергетических ресурсов влечет наложение административного штрафа на должностных лиц в размере от двадцати тысяч до тридцати тысяч рублей; на лиц, осуществляющих предпринимательскую деятельность без образования юридического лица, – от сорока тысяч до пятидесяти тысяч рублей; на юридических лиц, – от пятисот тысяч до шестисот тысяч рублей» (ст.37 п.3). При этом в эксплуатацию такое здание принято всё равно не будет, до оснащения требуемыми приборами учета.
Закон законом, но любой жилец многоквартирного дома и сам прекрасно осознаёт, что платить гораздо выгоднее за фактически потребленные энергоресурсы, а не по загадочному усредненному нормативу. Это доказал успешный опыт повальной установки квартирных водосчетчиков. Человек стал понимать, за что конкретно он платит и как он может эту оплату снизить, ограничив потребление воды. А тот, кто из упрямства или лени всё же не удосужился установить у себя в квартире водосчётчики, на личном кошельке убедился в порочности своего решения, так как коэффициенты к тарифам для таких «упрямцев» стали неумолимо расти.
Однако если с квартирными приборами учета воды дело обстоит достаточно просто, то учет количества тепловой энергии на отопление квартиры не всегда так однозначен.
Дело в том, что с советских времён в «многоэтажках» преобладают вертикальные однотрубные (стояковые) системы водяного отопления (рис. 1). Как самые дешевые и гидравлически устойчивые они вытеснили все остальные типы систем во времена массового жилищного строительства.
Рис. 1. Однотрубные вертикальные системы
Двухтрубные вертикальные системы (рис. 2) тоже довольно часто встречаются, но и они для целей поквартирного учета тепловой энергии на отопление мало пригодны.
Рис. 2. Двухтрубные вертикальные системы
Трудность учета тепла при вертикальных схемах состоит в том, что через одну квартиру проходит не один, а несколько стояков отопления, к каждому из которых присоединён один или несколько отопительных приборов.
Ставить на каждый стояк теплосчетчик накладно, да и достоверность подсчета количества тепловой энергии весьма сомнительна. Почему? Легко объяснить на примере.
Допустим, через квартиры 25-этажного жилого дома проходит стояк однотрубной системы, к которому на каждом этаже присоединён радиатор, компенсирующий расчетные теплопотери помещения Qр = 1500 Вт.
Нетрудно сосчитать, что расчётный расход теплоносителя по стояку составит:
G = N · Qp / c · Δt = 25 · 1500 / 4187 · 20 = 0,448 кг/с.
Перепад между температурой поступающего и уходящего с этажа теплоносителя составит:
Δti = Δt / N = 20 / 25 = 0,8 °C.
Но этот перепад справедлив только для расчетной температуры наружного воздуха (например, 30 °С), который, как мы помним, продолжается не более 5 сут. в течение отопительного периода в 200 сут., т.е. не более 2,5 % по времени.
В начале и ближе к окончанию отопительного периода, когда среднесуточная температура наружного воздуха держится на уровне +8 °С поэтажный перепад температур составит:
Такой незначительный перепад температур датчикам с паспортной точностью 0,3 °С (как у большинства современных теплосчетчиков) просто не уловить, поэтому их показания будут нулевыми, несмотря на то, что тепловая энергия фактически потребляется. На рис. 3 красным цветом показана доля неучтенной тепловой энергии для приведённого примера.
Рис. 3. График зависимости перепада температур от температуры наружного воздуха
Попытки как-то решить проблему учета тепла в вертикальных системах отопления предпринимались и предпринимаются. На рис. 4 представлен вариант такого решения.
Рис. 4. Экспериментальная схема квартирного теплоучета
На каждом стояке квартиры устанавливается пара датчиков температуры 1 (на входе и выходе теплоносителя из квартиры). Каждый стояк оборудован общим расходомером 3 с импульсным выходом. Квартирный тепловычислитель 2 получает сигналы от всех квартирных датчиков температуры и от расходомеров каждого стояка.
При этом информация от датчиков и расходомеров может передаваться как по проводным линиям, так и по радиоканалу.
Суммируя данные о теплопотреблении по каждому стояку, тепловычислитель рассчитывает данные о квартирном потреблении тепловой энергии. Опытная эксплуатация таких систем показала, что они удовлетворительно считают потребление тепловой энергии только при полностью открытых регулирующих органах на отопительных приборах, и искажают показание в межсезонье и при использовании различного рода терморегуляторов на радиаторах. Все это связано с малой разницей температур входящего и уходящего из квартиры теплоносителя.
В последнее время достаточно активно стали использоваться квартирные распределители стоимости тепловой энергии (рис. 5).
Рис. 5. Распределитель стоимости тепловой энергии
Распределитель – это прибор, который устанавливается на каждый отопительный прибор квартиры, и высчитывает некую теоретическую отвлеченную величину на основании введенных в него данных о номинальном тепловом потоке конкретного отопительного прибора, а также замера либо только температуры поверхности радиатора, либо – разницы температур между поверхностью радиатора и помещения.
Средством измерения распределители не являются. Они не дают точного представления о фактически потреблённой тепловой энергии, а служат лишь для сравнительной оценки примерного распределения общедомового теплопотребления между квартирами. Методика такого учета изложена в МДК 4.07.2004 и стандарте АВОК 4.3-2007.
Метод учета тепла с помощью распределителей используется скорее от безысходности, так как весьма уязвим.
- Во-первых, в прибор вводятся данные о номинальном тепловом потоке радиатора, которые не всегда являются достоверными.
- Во-вторых, в разных моделях нагревательных приборов средняя температура радиатора находится на разном уровне, меняющимся в зависимости от температурного напора.
- В-третьих, отопительный прибор должен быть протестирован для определения коэффициента термического контакта, и коэффициента влияния изменения температуры воздуха при применении однодатчиковых распределителей. На практике это делается не всегда, в результате чего показания распределителей весьма далеки от реальности.
- В-четвертых, показания распределителей очень легко исказить. Достаточно повесить влажную тряпку на однодатчиковый прибор или надеть картонную коробку на двухдатчиковый, как «потребление тепла» данной квартирой резко снизится.
- В-пятых, для организации нормального распределения оплаты за потребленную тепловую энергию распределителями должны оснащаться все квартиры многоквартирного дома.
У пользователей такой «учет» навряд ли вызовет оптимизм. Конфликты на тему «кто кого больше обманул» неизбежны.
Учитывая изложенные трудности учета тепла в вертикальных системах, при новом строительстве и реконструкции рекомендуется использовать горизонтальные схемы отопления. Квартирный узел учета тепловой энергии в этом случае может располагаться как внутри квартиры, так и вне ее.
Внутриквартирный узел учета тепловой энергии предусматривает наличие в квартире прямого и обратного стояка системы водяного отопления. Те есть горизонтальные системы квартирного отопления подключаются к стоякам по двухтрубной схеме.
Как и в любой двухтрубной системе, квартирные вводы должны быть сбалансированы между собой с помощью вентилей, балансировочных клапанов, регуляторов перепада давления или кранов двойной регулировки. Для чего это делается, можно пояснить на схеме, показанной на рис. 6.
Рис. 6. Иллюстрация принципа гидравлической увязки
Теплоноситель в двухтрубной системе проходит от магистрали от точки 1 до точки 4.
По мере продвижения циркуляционное давление снижается за счет потерь в трубах и тройниках (отражено на графике).
В системе отопления (СО) квартиры падение давление показано участком 4–5, причём такое же по величине падение давление происходит на всех этажах (участки 3–8 и 2–9). Возвращается теплоноситель по обратной магистрали 5–0.
Для того, чтобы давление в точках соединения обратных трубопроводов со стояком (точки 6 и 7) сравнялось, на 1-м и 2-м ярусе необходимо создать дополнительное сопротивление (участки 8–6 и 9–7).
Если этого не будет сделано на 2-м ярусе (удаление участка 8–6), то теплоноситель пойдёт по пути 1–3–8–10–12, оставив без тепла 3-й ярус.
Если убрать балансировочную арматуру на 1-м ярусе (удалить участок 9–7), то теплоноситель будет циркулировать по пути 1–2–9–11, игнорируя 2-й и 3-й ярусы.
Опасность балансировки с помощью вентилей (рис. 7) и балансировочных клапанов (рис. 8) заключается в том, что эта арматура не защищена от несанкционированного вмешательства. А любое изменение монтажной настройки может привести к разбалансировке всей системы.
Рис. 7. Вентили VT.052 и VTp.714
Рис. 8. Балансировочный клапан VT.054
В этом отношении наиболее приемлемым и надёжным представляется использование кранов двойной регулировки КРДП (рис. 9). Особенность этих кранов заключается в том, что изменить монтажную настройку крана можно только при слитом теплоносителе, а значит, несанкционированное вмешательство исключено.
Рис. 9. Кран двойной регулировки VT.004 (КРДП)
Балансировка систем отопления при помощи арматуры с фиксированной пропускной способностью (вентили, балансировочные клапаны, КРДП) не лишена некоторых недостатков.
- Во-первых, при работе ручных или термостатических клапанов могут возникнуть проблемы учета тепловой энергии из-за малого расхода и малого перепада температур.
- Во-вторых, снижение расхода через какой-либо участок системы вызывает повышение расходов через остальные участки.
Повышение расчетного расхода через квартирные узлы приводит к быстрому выходу из строя теплосчетчиков, появлению шума в радиаторных терморегуляторах и некорректной их работе (особенно это касается термостатических клапанов с газонаполненными термочувствительными элементами).
Использование циркуляционных насосов с частотным регулированием частично нивелирует проблему превышения расчетных расходов, но полностью её не снимает и не всегда экономически целесообразно.
Ряд фирм под лозунгом «повышения энергоэффективности» настоятельно рекомендует оснащать квартирные тепловые вводы автоматическими регуляторами перепада давлений (рис. 10).
Рис. 10. Автоматический регулятор перепада давлений
Как правило, регулятор перепада давления включается в работу квартирного узла учета тепловой энергии по безбайпассной схеме, представленной на рис. 11, которая защищает квартирную систему отопления от перерасхода теплоносителя, но не решает проблему малых расходов в межсезонье.
Рис. 11. Пример схемы квартирного узла с регулятором перепада давлений: 1 – шаровой кран; 2 – фильтр; 3 – теплосчетчик; 4 – балансировочный клапан; 5 – шаровой кран с патрубком для датчика температуры; 6 – регулятор перепада давлений
- К тому же, сами регуляторы перепада давления имеют ряд недостатков:
- импульсные медные трубки, связывающие регулятор, установленный на обратной линии с точкой отбора импульса, имеют весьма малый диаметр внутреннего канала (не более 2 мм).
В отечественных системах центрального отопления уже через несколько месяцев работы эти трубки полностью «зарастают» шламом, и весь прибор становится бесполезным «архитектурным излишеством»; - установка регулятора не решает проблему учета малых расходов при работе радиаторных термостатов;
- смысл в установке регуляторов перепада давления появляется только в том случае, когда система отопления оснащена циркуляционным насосом с частотным регулированием;
- экономичность использования квартирных регуляторов весьма сомнительна. Давайте произведем несложный расчет. Допустим, расчетная теплопотребность квартиры площадью 100 м2 составляет 10 кВт. Расчетный расход через узел ввода: 10000/(4187 · 20) = 0,119 кг/с (G = 0,43 м3/ч). Расчетные потери давления – 50 кПа (H = 5 м вод. ст.).
При КПД циркуляционного насоса 50 % (η = 0,5), доля его рабочей мощности, приходящаяся на обслуживание данной квартиры составит:
Ν = p · g · H · G / 3600 · η = 980 · 9,8 · 5 · 0,43 / 3600 · 0,5 = 11,5 Вт.
Что за отопительный период в 200 сут. даст суммарное потребление электроэнергии 200 · 11,5 · 24 = 55 200 Вт·ч (55,2 кВт· ч), что при нынешнем тарифе 2,5 руб/кВт·ч составит в год 138 руб.
Даже если представить фантастическую ситуацию, когда установка регулятора перепада давлений на квартиру сэкономит всю потребную электроэнергию, то этот прибор, стоимость которого на сегодня составляет порядка 10 000 руб., сможет окупить себя за каких-то 10 000 / 138 = 72 года (при паспортном сроке службы в 15 лет). Да и экономит регулятор не 100 % потребляемой электроэнергии, а существенно ниже. Не слишком ли разорительная подобная «энергетическая эффективность»?
Гораздо проще и дешевле проблему превышения расходов решить при помощи перепускного клапана или устройства байпаса с трехходовым клапаном, оборудованным сервоприводом, который управляется по команде комнатного термостата. Именно последний принцип использован в квартирных станциях VALTEC CONTROL MODUL (рис. 12).
Рис. 12. Квартирная станция VALTEC CONTROL MODUL
Эти станции позволяют осуществлять гидравлическую балансировку и аппаратную настройку вторичного контура и байпаса, производить автоматическое переключение направления потока с квартиры в байпас по команде комнатного термостата и организовывать удаленное считывание показаний теплосчетчика по проводной или беспроводной сети. Тепломеханическая схема станции приведена на рис. 13.
Рис. 13. Схема станции VALTEC CONTROL MODUL
Таблица. Состав станции VALTEC CONTROL MODUL
Позиция |
Наименование |
1 |
Трехходовой термостатический клапан |
2 |
Балансировочный клапан квартирного контура отопления |
3 |
Балансировочный клапан байпаса |
4 |
Шаровой кран рабочего байпаса |
5 |
Шаровой кран настроечного байпаса |
6 |
Фильтр механической очистки |
7 |
Теплосчетчик VALTEC VHM-T |
8 |
Патрубок для установки датчика температуры |
9 |
Кран шаровой |
10 |
Клеммная коробка |
16 |
Клапан обратный |
Рис. 14. Режимы работы станции VALTEC CONTROL MODUL
- Предусмотрено три штатных режима работы станции (рис. 14):
- весь теплоноситель направлен в квартирную систему отопления (режим 1);
- весь теплоноситель направлен в рабочий байпас (режим 2);
- теплоноситель направлен через настроечный байпас для настройки балансировочного клапана рабочего байпаса (поз. 3 на схеме, режим 3).
В случае применения квартирной станции квартирная система отопления решается по однотрубной схеме, в которой работа радиаторных термостатов существенно не влияет на общий квартирный расход (рис. 15).
Рис. 15. Схема подключения отопительных приборов
При отсутствии запроса на отопление (комнатный термостат выключен), сервопривод перенаправляет весь поступающий теплоноситель в байпас, поэтому общее гидравлическое сопротивление узла не меняется и не влияет на работу остальных квартирных станций дома.
Через расходомер теплосчетчика в этом случае проходит количество теплоносителя, достаточное для его корректной работы. Перерасход теплоносителя через станцию такой системе также не грозит.
Комнатный термостат, управляющий работой сервопривода квартирной станции, устанавливается, как правило, в самом помещении,в котором требуется поддерживать самую высокую температуру в квартире (гостиная, детская). Желательно также, чтобы это помещение меньше всего подвергалось инсоляции (прогреву солнечными лучами).
Если все эти условия выполняются, то совместная работа термостата и термостатического клапана станции будут поддерживать заданный режим поступления теплоносителя в квартиру.
В этом случае радиаторные терморегуляторы (термостатические клапаны) выполняют чисто корректирующую функцию, ограничивая расход теплоносителя через отопительный прибор в «экстремальных» ситуациях (пришли гости, повышенная инсоляция и т.п.).
- Квартирная станция VALTEC CONTROL MODUL может быть установлена как в самой квартире, так и на лестничной площадке. При установке станции на лестничной площадке появляется ряд следующих преимуществ:
- стояки выносятся за пределы квартиры, они не занимают пространство и не грозят заливом при разгерметизации;
- упрощается обслуживание и ремонт станций эксплуатирующими организациями;
- коммунальные работники могут визуально контролировать работу приборов учета;
- появляется возможность ограничивать потребление ресурсов злостными неплательщиками.
Горизонтальная разводка системы квартирного отопления может выполняться скрыто в стяжке пола, но целесообразнее представляется плинтусное исполнение, т.к. в этом случае затраты на возможную замену или ремонт трубопроводов значительно ниже.
Прокладываемые внутри профильного плинтуса трубы соединяются с отопительными приборами с помощью специальных «плинтусных» фитингов. На рис. 16 приведен пример использования пресс-фитингов VTm.233i и VTm.253i (рис. 17) для присоединения к радиаторным термостатическим узлам бокового подключения.
Рис. 16. Вариант подключения радиаторов при плинтусной разводке
Рис. 17. Пресс-фитинги с переходом на обжим
В этом случае непосредственно к узлу подключаются отводы VTi.960, выполненные из нержавеющей стали.
Можно также использовать пресс-фитинги VTm.281 и VTm.282, которые имеют интегрированные латунные хромированные трубки (рис. 18).
Рис. 18. «Плинтусные» фитинги с интегрированной хромированной трубкой
Удобнее, когда квартирный узел учета тепловой энергии объединяется в единый блок с квартирными узлами учета холодной и горячей воды. Для таких случаев выпускается квартирная станция CONTROL MODUL F (рис. 19).
Рис. 19. Квартирная станция VALTEC CONTROL MODUL F
В состав этой станции кроме «теплового» узла включены водопроводные вводы в составе шаровых кранов с фильтрами механической очистки, регуляторов давления и водосчетчиков.
Существенным преимуществом использования квартирных станций является то, что они легко могут интегрироваться в общедомовую автоматизированную систему контроля и учета энергоресурсов (АСКУЭ). Причем эта задача может быть решена как по проводной (система VALTEC M-BUS), так и по беспроводной схеме (система VALTEC CASCAD).
При диспетчеризации по системе VALTEC M-BUS квартирная станция оснащается теплосчетчиком VHM-T-B, который имеет два импульсных ввода от водосчетчиков VLF-I и единый выход по протоколу M-BUS (рис. 20).
Рис. 20. Принципиальная схема организации АСКУЭ VALTEC M-BUS
По проводной шине M-Bus сигнал передаётся на концентратор, а далее любым способом (дисплей, компьютер, карта памяти, интернет, проводная сеть, модем) – на диспетчерский пункт.
Данная сеть может быть развита до неограниченного количества каналов.
При беспроводной системе АСКУЭ VALTEC CASCAD в состав квартирной станции включаются водосчетчики и теплосчетчик с импульсными выходами, которые через трёхканальный преобразователь импульсов VT.D100 и концентратор VT.J100 передают данные на сервер диспетчеризации VT.SERVER. Сервер может обрабатывать до 3500 точек учёта (рис. 21).
Рис. 21. Принципиальная схема организации АСКУЭ VALTEC CASCAD
- Квартирные станции VALTEC сейчас уже не воспринимаются, как некая «экзотика». Их преимущества очевидны для всех участников инвестиционного процесса:
- проектировщикам гораздо легче включить в проект и в спецификацию комплектную проектную станцию, чем поэлементно прорисовывать и рассчитывать каждую инженерную систему;
- строителям не надо возиться со сборкой и отладкой узлов ввода. Шкафная станция просто присоединяется к стоякам и квартирным трубопроводам, а её настройка занимает не более 15 минут;
- жилец получает возможность реально экономить потребляемые им энергоресурсы, настраивать уровень микроклимата в помещениях по своему желанию, а главное – оплачивать только то, что он фактически потребил;
- эксплуатирующие организации имею свободный доступ к узлу учета энергоресурсов. Они могут его обслуживать и контролировать его работу, не беспокоя жильцов. Кроме того, имеется возможность ограничения доступа к ресурсам недобросовестных владельцев квартир, которые уклоняются от уплаты за эти ресурсы.
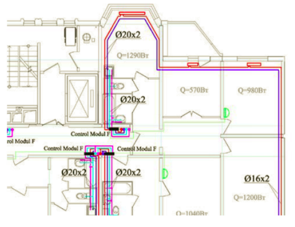
На рис. 22 приведен фрагмент реализованного проекта многоквартирного жилого дома, в котором заложены квартирные станции вертикального исполнения IV CONTROL MODUL, расположенные на лестничной площадке. Cервоприводы термостатических клапанов станций управляются комнатными термостатами VT.AC 701.
Рис. 22. Фрагмент проекта жилого дома с квартирными станциями IV CONTROL MODUL
Система отопления квартир использована горизонтальная плинтусная из металлополимерных труб VALTEC PEX-AL-PEX.
В заключение хотелось бы привести несколько фотографий с практически реализованных объектов, на которых были использованы квартирные станции VALTEC (рис. 23, 24, 25).
Рис. 23
Рис. 24
Рис. 25
- Приложения:
- План типовой секции жилого многоэтажного дома с применением станции CONTROL MODUL F.
- Схемы водоснабжения и отопления жилого многоэтажного дома с применением станции CONTROL MODUL F.
Автор: Полякова Е.В.
Все авторские права защищены.
При копировании статьи ссылка на правообладателя и/или на сайт valtec.ru обязательна.