- Главная
- Техподдержка
- Статьи
- Технология монтажа водяного теплого пола
Технология монтажа водяного теплого пола
Наиболее распространенным способом реализации систем напольного отопления являются монолитные бетонные полы, выполненные так называемым “мокрым” методом. Конструкция пола представляет из себя “слоеный пирог” из различных материалов (рис.1).

Рис.1 Укладка петель теплого пола одиночным змеевиком
Монтаж системы теплых полов начинается с подготовки поверхности под монтаж теплого пола. Поверхность должна быть выровнена, неровности по площади не должны превышать ±5 мм. Допускаются неровности и выступы не более 10 мм. При необходимости поверхность выравнивается дополнительной стяжкой. Нарушение этого требования может привести к “завоздушиванию” труб. Если в расположенном ниже помещении повышенная влажность желательно уложить гидроизоляцию (полиэтиленовая пленка).
После выравнивания поверхности необходимо вдоль боковых стен уложить демпферную ленту шириной не менее 5мм для компенсации теплового расширения монолита теплого пола. Она должна быть уложена вдоль всех стен, обрамляющих помещение, стоек, дверных коробок, отводов и т.п. Лента должна выступать над запланированной высотой конструкции пола минимум на 20 мм.
После чего укладывается слой теплоизоляции для предотвращения утечки тепла в нижние помещения. В качестве термоизоляции рекомендуется использовать вспененные материалы (полистирол, полиэтилен и т.д.) плотностью не менее 25 кг/м3. Если невозможно уложить толстые слои теплоизоляции, то в этом случае применяются фольгированные теплоизоляционные материалы толщиной 5 или 10 мм. Важно, чтобы фольгированные теплоизоляционные материалы имели защитную пленку на алюминии. В противном случае, щелочная среда бетонной стяжки разрушает фольгированный слой в течение 3–5 недель.
Раскладка труб
Осуществляется с определенным шагом и в нужной конфигурации. При этом рекомендуется подающий трубопровод следует укладывать ближе к наружным стенам.
При укладке “одиночный змеевик” (рис.2) распределение температуры поверхности пола не равномерное.

Рис.2 Укладка петель теплого пола одиночным змеевиком
При спиральной укладке (рис.3), трубы с противоположными направлениями потоков чередуются, причем наиболее горячий участок трубы соседствует с наиболее холодным. Это приводит к равномерному распределению температуры по поверхности пола.

Рис.3 Укладка петель теплого пола спиралью.
Укладка трубы производится по разметке, нанесенной на теплоизолятор, якорными скобами через 0.3 - 0.5 м, либо между специальными выступами теплоизолятора. Шаг укладки рассчитывается и лежит в пределах от 10 до 30 см, но не должен превышать 30 см иначе возникнет неравномерный нагрев поверхности пола с появлением теплых и холодных полос. Области вблизи наружных стен здания называют граничными зонами. Здесь рекомендуется уменьшать шаг укладки трубы, для того чтобы компенсировать потери тепла через стены. Длина одного контура (петли) теплого пола не должна превышать 100–120 м, потери давления на одну петлю (вместе с арматурой) не более 20 кПа; минимальная скорость движения воды – 0,2 м/с (во избежание образования в системе воздушных пробок).
После раскладки петель, непосредственно перед заливкой стяжки, производится опрессовка системы при давлении 1.5 от рабочего, но не менее 0.3 МПа.
При заливке цементно-песочной стяжки труба должна находиться под давлением воды 0,3 МПа при комнатной температуре. Минимальная высота заливки над поверхностью трубы должна быть не менее 3 см (максимальная рекомендуемая высота, по европейским нормам - 7 см). Цементно-песчаная смесь должна быть не ниже марки 400 с пластификатором. После заливки стяжку рекомендуется «провибрировать». При длине монолитной плиты более 8 м или площади больше 40 м2 необходимо предусмотреть швы между плитами минимальной толщиной 5 мм, для компенсации теплового расширения монолита. При прохождении труб через швы они должны иметь защитную оболочку длиной не менее 1 м.
Пуск системы осуществляется только после полного высыхания бетона (примерно 4 дня на 1 см толщины стяжки). Температура воды при пуске системы должна быть комнатной. После пуска системы ежедневно увеличивать температуру подаваемой воды на 5°С до рабочей температуры.
Основные температурные требования к системам теплых полов
- Рекомендуется среднюю температуру поверхности пола принимать не выше (согласно СНиП 41-01-2003, п. 6.5.12):
- 26°С для помещений с постоянным пребыванием людей
- 31°С для помещений с временным пребыванием людей и обходных дорожек плавательных бассейнов
- Температура поверхности пола по оси нагревательного элемента в детских учреждениях, жилых зданиях и плавательных бассейнах не должна превышать 35°С
Согласно СП 41-102-98 перепад температуры на отдельных участках пола не должен превышать 10°С (оптимально 5°С). Температура теплоносителя в системе теплых полов не должна превышать 55°С (СП 41-102-98 п. 3.5 а).
Комплект водяного теплого пола на 15 м2
Комплект теплого пола для обогрева помещений площадью 15-20 м2 со смесительным узлом с ручной регулировкой температуры теплоносителя на основе смесительно – разделительного клапана MIX 03. Настройка рабочей температуры теплоносителя осуществляется вручную поворотом рукоятки клапана.
При спиральной укладке петли теплого пола (толщина стяжки 3 см с напольным покрытием из керамической плитки) с шагом 15-20 см и расчетной температуре теплоносителя 30°С – температура поверхности пола 24-26°С, расход теплоносителя около 0,2 м3/ч, скорость течения 0,2-0,5 м/с, потери давления в петле приблизительно 5 кПа (0,5 м).
Точный расчет тепловых и гидравлических параметров можно провести с использованием бесплатной программы расчетов теплых полов Valtec Prog.
Наименование | Артикул | Кол.-во | Стоимость |
---|---|---|---|
МП труба Valtec | V1620 | 100 м | 3 580 |
Пластификатор | THZ.P.10 | 2х10 л | 1 611 |
Лента демпферная | THZ.LD.100.01.25 | 2х10 м | 1 316 |
Теплоизоляция | VT.HS.FP.0312 | 18 м2 | 2 648 |
Трехходовой смесительный клапан | VT.MIX03.G.05 ¾” | 1 | 1 400 |
Циркуляционный насос | UPC 25-40 | 1 | 2 715 |
Ниппель-переходник | VT 580 1”х3/4” | 1 | 56.6 |
Ниппель-переходник | VT 580 1”х1/2” | 1 | 56.6 |
Кран шаровой | VT 218 ½” | 1 | 93.4 |
Соединитель прямой с переходом на внутреннюю резьбу | VTm 302 16х ½” | 2 | 135.4 |
Кран шаровой | VT 219 ½” | 1 | 93.4 |
Тройник | VT 130 ½” | 1 | 63.0 |
Бочонок | VT 652 ½”х60 | 1 | 63.0 |
Переходник Н-В | VT 581 ¾”х ½” | 1 | 30.1 |
Итого | 13 861.5 |

Комплект водяного теплого пола на 15 м2 (с усиленной теплоизоляцией, при неотапливаемых нижних помещениях)
Комплект теплого пола для обогрева помещений площадью 15-20 м2 со смесительным узлом с ручной регулировкой температуры теплоносителя на основе смесительно – разделительного клапана MIX 03. Настройка рабочей температуры теплоносителя осуществляется вручную поворотом рукоятки клапана. Усиленная теплоизоляция позволяет устраивать систему теплых полов над неотапливаемыми помещениями.
При спиральной укладке петли теплого пола (толщина стяжки 3 см с напольным покрытием из керамической плитки) с шагом 15-20 см и расчетной температуре теплоносителя 30°С – температура поверхности пола 24-26°С, расход теплоносителя около 0,2 м3/ч, скорость течения 0,2-0,5 м/с, потери давления в петле приблизительно 5 кПа (0,5 м).
Точный расчет тепловых и гидравлических параметров можно провести с использованием бесплатной программы расчетов теплых полов Valtec Prog.
Наименование | Артикул | Кол.-во | Стоимость |
---|---|---|---|
МП труба Valtec | V1620 | 100 м | 3 580 |
Пластификатор | THZ.P.10 | 2х10 л | 1 611 |
Лента демпферная | THZ.LD.100.01.25 | 2х10 м | 1 316 |
Теплоизоляция | VT.HS.FP.0312 | 3х5 м2 | 4 281 |
Трехходовой смесительный клапан | VT.MIX03.G.05 ¾” | 1 | 1 400 |
Циркуляционный насос | UPC 25-40 | 1 | 2 715 |
Ниппель-переходник | VT 580 1”х3/4” | 1 | 56.6 |
Ниппель-переходник | VT 580 1”х1/2” | 1 | 56.6 |
Кран шаровой | VT 218 ½” | 1 | 93.4 |
Соединитель прямой с переходом на внутреннюю резьбу | VTm 302 16х ½” | 2 | 135.4 |
Кран шаровой | VT 219 ½” | 1 | 93.4 |
Тройник | VT 130 ½” | 1 | 63.0 |
Бочонок | VT 652 ½”х60 | 1 | 63.0 |
Переходник Н-В | VT 581 ¾”х ½” | 1 | 30.1 |
Итого | 15 494.5 |

Комплект водяного теплого пола до 30 м2 - 1
Комплект теплого пола для обогрева помещений площадью 30-40 м2 со смесительным узлом с ручной регулировкой температуры теплоносителя на основе смесительно – разделительного клапана MIX 03. Настройка рабочей температуры теплоносителя осуществляется вручную поворотом рукоятки клапана. Для обеспечения равного расхода теплоносителя в петлях теплого пола их длинна и схема укладки должны быть одинаковы.
При спиральной укладке петли теплого пола (толщина стяжки 3 см с напольным покрытием из керамической плитки) с шагом 15-20 см и расчетной температуре теплоносителя 30°С – температура поверхности пола 24-26°С, расход теплоносителя около 0,2 м3/ч, скорость течения 0,2-0,5 м/с, потери давления в петле приблизительно 5 кПа (0,5 м).
Точный расчет тепловых и гидравлических параметров можно провести с использованием бесплатной программы расчетов теплых полов Valtec Prog.
Наименование | Артикул | Кол.-во | Стоимость |
---|---|---|---|
МП труба Valtec | V1620 | 200 м | 7 160 |
Пластификатор | THZ.P.10 | 4х10 л | 3 222 |
Лента демпферная | THZ.LD.100.01.25 | 3х10 м | 1 974 |
Теплоизоляция | VT.HS.FP.0312 | 2х18 м2 | 5 296 |
Трехходовой смесительный клапан | VT.MIX03.G.05 ¾” | 1 | 1 400 |
Ниппель-переходник | VT 580 1”х3/4” | 2 | 113.2 |
Ниппель | VT 582 3/4” | 1 | 30.8 |
Тройник | VT 130 ¾” | 1 | 96.7 |
Угольник | VT 93 ¾” | 1 | 104.9 |
Сгон прямой | VT 341 ¾” | 1 | 104.9 |
Циркуляционный насос | UPC 25-40 | 1 | 2 715 |
Кран шаровой | VT 217 ¾” | 2 | 266.4 |
Коллектор | VT 500n 2 вых.х ¾”х ½” | 2 | 320 |
Пробка | VT 583 ¾” | 2 | 61.6 |
Фитинг для МП трубы | VT 710 16(2,0) | 4 | 247.6 |
Фитинг для МП трубы | VTm 301 20 х ¾” | 1 | 92.4 |
Фитинг для МП трубы | VTm 302 20 х ¾” | 1 | 101.0 |
Итого | 23 306.5 |

Комплект водяного теплого пола до 30 м2 - 2
Комплект теплого пола для обогрева помещений площадью 30-40 м2 со смесительным узлом с ручной регулировкой температуры теплоносителя на основе смесительно – разделительного клапана MIX 03. Настройка рабочей температуры теплоносителя осуществляется вручную поворотом рукоятки клапана. Для облегчения выпуска воздуха система дополнена автоматическими воздухоотводчиками и дренажными клапанами. Для обеспечения равного расхода теплоносителя в петлях теплого пола их длинна и схема укладки должны быть одинаковы. Усиленная теплоизоляция позволяет устраивать систему теплых полов над неотапливаемыми помещениями.
При спиральной укладке петли теплого пола (толщина стяжки 3 см с напольным покрытием из керамической плитки) с шагом 15-20 см и расчетной температуре теплоносителя 30°С – температура поверхности пола 24-26°С, расход теплоносителя около 0,2 м3/ч, скорость течения 0,2-0,5 м/с, потери давления в петле приблизительно 5 кПа (0,5 м).
Точный расчет тепловых и гидравлических параметров можно провести с использованием бесплатной программы расчетов теплых полов Valtec Prog.
Наименование | Артикул | Кол.-во | Стоимость |
---|---|---|---|
МП труба Valtec | V1620 | 200 м | 7 160 |
Пластификатор | THZ.P.10 | 4х10 л | 3 222 |
Лента демпферная | THZ.LD.100.01.25 | 3х10 м | 1 974 |
Теплоизоляция | VT.HS.FP.0312 | 6х5 м2 | 8 562 |
Трехходовой смесительный клапан | VT.MIX03.G.05 ¾” | 1 | 1 400 |
Ниппель-переходник | VT 580 1”х3/4” | 2 | 113.2 |
Ниппель | VT 582 3/4” | 1 | 30.8 |
Тройник | VT 130 ¾” | 1 | 96.7 |
Угольник | VT 93 ¾” | 1 | 104.9 |
Сгон прямой | VT 341 ¾” | 1 | 104.9 |
Циркуляционный насос | UPC 25-40 | 1 | 2 715 |
Кран шаровой | VT 217 ¾” | 2 | 266.4 |
Коллектор | VT 500n 2 вых.х ¾”х ½” | 2 | 320 |
Фитинг для МП трубы | VT 710 16(2,0) | 4 | 247.6 |
Фитинг для МП трубы | VTm 302 20 х ¾” | 1 | 101 |
Фитинг для МП трубы | VTm 301 20 х ¾” | 1 | 92.4 |
Тройник коллекторный для монтажа воздухоотводчика и дренажного клапана | VT 530 3/4”х 1/2”х3/8” | 2 | 238.4 |
Отсекающий клапан | VT 539 3/8” | 2 | 97.4 |
Переходник В-Н | VT 592 1/2”х3/8” | 2 | 49.4 |
Воздухоотводчик автоматический | VT 502 1/2” | 2 | 320.8 |
Кран дренажный | VT 430 1/2” | 2 | 209.8 |
Итого | 27 446.7 |

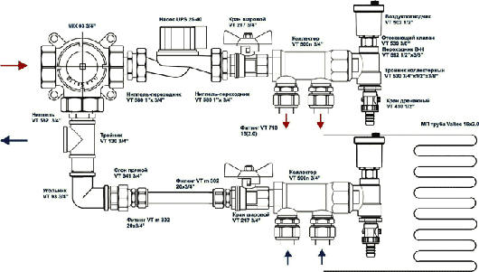
Комплект водяного теплого пола до 60 м2 - 1
Комплект теплого пола для обогрева помещений площадью 60-80 м2 со смесительным узлом с ручной регулировкой температуры теплоносителя на основе смесительно – разделительного клапана MIX 03. Настройка рабочей температуры теплоносителя осуществляется вручную поворотом рукоятки клапана. Для облегчения выпуска воздуха система дополнена автоматическими воздухоотводчиками и дренажными клапанами. Для обеспечения равного расхода теплоносителя в петлях теплого пола (гидравлической балансировки петель) используются коллектора с интегрированными отсекающими и регулирующими кранами. Усиленная теплоизоляция позволяет устраивать систему теплых полов над неотапливаемыми помещениями.
При спиральной укладке петли теплого пола (толщина стяжки 3 см с напольным покрытием из керамической плитки) с шагом 15-20 см и расчетной температуре теплоносителя 30°С – температура поверхности пола 24-26°С, расход теплоносителя около 0,2 м3/ч, скорость течения 0,2-0,5 м/с, потери давления в петле приблизительно 5 кПа (0,5 м).
Точный расчет тепловых и гидравлических параметров можно провести с использованием бесплатной программы расчетов теплых полов Valtec Prog.
Наименование | Артикул | Кол.-во | Стоимость |
---|---|---|---|
МП труба Valtec | V1620 | 400 м | 14 320 |
Пластификатор | THZ.P.10 | 8х10 л | 6 444 |
Лента демпферная | THZ.LD.100.01.25 | 6х10 м | 3 948 |
Теплоизоляция | VT.HS.FP.0312 | 12х5 м2 | 17 124 |
Трехходовой смесительный клапан | VT.MIX03.G.05 ¾” | 1 | 1 400 |
Ниппель-переходник | VT 580 1”х3/4” | 2 | 113.2 |
Ниппель | VT 582 3/4” | 1 | 30.8 |
Тройник | VT 130 ¾” | 1 | 96.7 |
Угольник | VT 93 ¾” | 1 | 104.9 |
Сгон прямой | VT 341 ¾” | 1 | 104.9 |
Циркуляционный насос | UPC 25-40 | 1 | 2 715 |
Кран шаровой | VT 217 ¾” | 2 | 266.4 |
Коллектор | VT 560n 4 вых.х ¾”х ½” | 1 | 632.9 |
Коллектор | VT 580n 2 вых.х ¾”х ½” | 2 | 741.8 |
Фитинг для МП трубы | VT 710 16(2,0) | 8 | 495.2 |
Фитинг для МП трубы | VTm 302 20 х ¾” | 1 | 101 |
Фитинг для МП трубы | VTm 301 20 х ¾” | 1 | 92.4 |
Тройник коллекторный для монтажа воздухоотводчика и дренажного клапана | VT 530 3/4”х 1/2”х3/8” | 2 | 238.4 |
Отсекающий клапан | VT 539 3/8” | 2 | 97.4 |
Переходник В-Н | VT 592 1/2”х3/8” | 2 | 49.4 |
Воздухоотводчик автоматический | VT 502 1/2” | 2 | 320.8 |
Кран дренажный | VT 430 1/2” | 2 | 209.8 |
Кронштейн для коллектора | VT 130 3/4” | 2 | 266.4 |
Итого |

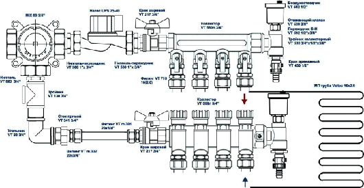
Комплект водяного теплого пола до 60 м2 - 2. (автоматическое регулирование температуры)
Комплект теплого пола для обогрева помещений площадью 60-80 м2 со смесительным узлом с ручной регулировкой температуры теплоносителя на основе смесительно – разделительного клапана MIX 03. Настройка рабочей температуры теплоносителя осуществляется автоматически сервоприводом клапана в зависимости от величины температуры теплоносителя установленной по шкале накладного термостата. Для облегчения выпуска воздуха система дополнена автоматическими воздухоотводчиками и дренажными клапанами. Для обеспечения равного расхода теплоносителя в петлях теплого пола (гидравлической балансировки петель) используются коллектора с интегрированными отсекающими и регулирующими кранами. Усиленная теплоизоляция позволяет устраивать систему теплых полов над неотапливаемыми помещениями.
При спиральной укладке петли теплого пола (толщина стяжки 3 см с напольным покрытием из керамической плитки) с шагом 15-20 см и расчетной температуре теплоносителя 30°С – температура поверхности пола 24-26°С, расход теплоносителя около 0,2 м3/ч, скорость течения 0,2-0,5 м/с, потери давления в петле приблизительно 5 кПа (0,5 м).
Точный расчет тепловых и гидравлических параметров можно провести с использованием бесплатной программы расчетов теплых полов Valtec Prog.
Наименование | Артикул | Кол.-во | Стоимость |
---|---|---|---|
МП труба Valtec | V1620 | 400 м | 14 320 |
Пластификатор | THZ.P.10 | 8х10 л | 6 444 |
Лента демпферная | THZ.LD.100.01.25 | 6х10 м | 3 948 |
Теплоизоляция | VT.HS.FP.0312 | 12х5 м2 | 17 124 |
Трехходовой смесительный клапан | VT.MIX03.G.05 ¾” | 1 | 1 400 |
Ниппель-переходник | VT 580 1”х3/4” | 2 | 113.2 |
Ниппель | VT 582 3/4” | 1 | 30.8 |
Тройник | VT 130 ¾” | 1 | 96.7 |
Угольник | VT 93 ¾” | 1 | 104.9 |
Сгон прямой | VT 341 ¾” | 1 | 104.9 |
Циркуляционный насос | UPC 25-40 | 1 | 2 715 |
Кран шаровой | VT 217 ¾” | 2 | 266.4 |
Коллектор | VT 560n 4 вых.х ¾”х ½” | 1 | 632.9 |
Коллектор | VT 580n 2 вых.х ¾”х ½” | 2 | 741.8 |
Фитинг для МП трубы | VT 710 16(2,0) | 8 | 495.2 |
Фитинг для МП трубы | VTm 302 20 х ¾” | 1 | 101 |
Фитинг для МП трубы | VTm 301 20 х ¾” | 1 | 92.4 |
Тройник коллекторный для монтажа воздухоотводчика и дренажного клапана | VT 530 3/4”х 1/2”х3/8” | 2 | 238.4 |
Отсекающий клапан | VT 539 3/8” | 2 | 97.4 |
Переходник В-Н | VT 592 1/2”х3/8” | 2 | 49.4 |
Воздухоотводчик автоматический | VT 502 1/2” | 2 | 320.8 |
Кран дренажный | VT 430 1/2” | 2 | 209.8 |
Сервомотор для смесительного клапана | NR 230 | 1 | 3 919 |
Термостат регулирующий накладной | EM 548 | 1 | 550.3 |
Кронштейн для коллектора | VT 130 3/4” | 2 | 266.4 |
Итого |

Комплект водяного теплого пола до 60 м2 - 3. (автоматическое регулирование температуры)
Комплект теплого пола для обогрева помещений площадью 60-80 м2 со смесительным узлом с ручной регулировкой температуры теплоносителя на основе смесительно – разделительного клапана MIX 03. Настройка рабочей температуры теплоносителя осуществляется автоматически сервоприводом клапана в зависимости от величины температуры теплоносителя установленной по шкале накладного термостата. В системе используется коллекторный блок с регулирующими клапанами с расходомерами (опция), для обеспечения равного расхода теплоносителя в петлях теплого пола (гидравлической балансировки петель). Использование коллекторного регулируемого байпаса позволяет перенаправить поток теплоносителя от подающего к обратному коллектору в случае, когда расход через коллекторные петли уменьшается ниже значения, установленного на перепускном клапане байпаса. Это позволяет сохранять гидравлические характеристики коллекторной системы независимо от воздействия органов управления коллекторных петель (ручные, термостатические клапаны или сервоприводы).
При спиральной укладке петли теплого пола (толщина стяжки 3 см с напольным покрытием из керамической плитки) с шагом 15-20 см и расчетной температуре теплоносителя 30°С – температура поверхности пола 24-26°С, расход теплоносителя около 0,2 м3/ч, скорость течения 0,2-0,5 м/с, потери давления в петле приблизительно 5 кПа (0,5 м).
Точный расчет тепловых и гидравлических параметров можно провести с использованием бесплатной программы расчетов теплых полов Valtec Prog.
Наименование | Артикул | Кол.-во | Стоимость |
---|---|---|---|
МП труба Valtec | V1620 | 400 м | 14 320 |
Пластификатор | THZ.P.10 | 8х10 л | 6 444 |
Лента демпферная | THZ.LD.100.01.25 | 6х10 м | 3 948 |
Теплоизоляция | VT.HS.FP.0312 | 12х5 м2 | 17 124 |
Трехходовой смесительный клапан | VT.MIX03.G.05 ¾” | 1 | 1 400 |
Сгон прямой В-Н | VT 341 1” | 1 | 189.4 |
Циркуляционный насос | UPC 25-40 | 1 | 2 715 |
Кран шаровой | VT 219 1” | 3 | 733.5 |
Блок коллекторный 1** | VT 594 MNX 4х 1” | 1 | 4 036.1 |
Блок коллекторный 2** | VT 595 MNX 4х 1” | 1 | 5 714.8 |
Байпас тупиковый * | VT 666 | 1 | 884.6 |
Фитинг для МП трубы евроконус | VT TA 4420 16(2,0)х¾” | 8 | 549.6 |
Тройник | VT 130 1” | 1 | 177.2 |
Сервомотор для смесительного клапана | NR 230 | 1 | 3 919 |
Термостат регулирующий накладной | EM 548 | 1 | 550.3 |
Итого 1 | 56 990.7 | ||
Итого 2 | 58 669.4 |
* - опция
** - на выбор

Комплект водяного теплого пола площадью более 60 м2. (насосно-смесительный узел Combimix)
Комплект теплого пола для обогрева помещений площадью более 60 м2 с насосно- смесительным узлом с автоматическим поддержанием температуры теплоносителя. Максимальная мощность системы теплых полов 20 кВт. В системе используется коллекторный блок с регулирующими клапанами с расходомерами (опция), для обеспечения равного расхода теплоносителя в петлях теплого пола (гидравлической балансировки петель).
Точный расчет тепловых и гидравлических параметров петель теплого пола можно провести с использованием бесплатной программы расчетов теплых полов Valtec Prog.
Наименование | Артикул | Кол.-во | Стоимость |
---|---|---|---|
МП труба Valtec | V1620 | от площади | |
Пластификатор | THZ.P.10 | от площади | |
Лента демпферная | THZ.LD.100.01.25 | от площади | |
Теплоизоляция | VT.HS.FP.0312 | от площади | |
Насосно-смесительный узел | VT.COMBI | 1 | 9 010 |
Циркуляционный насос 1** | Wilo Star RS 25/4 | 1 | 3 551 |
Циркуляционный насос 2** | Wilo Star RS 25/6 | 1 | 4 308 |
Кран шаровой | VT 219 1” | 2 | 489 |
Блок коллекторный 1** | VT 594 MNX | 1 | от площади |
Блок коллекторный 2** | VT 595 MNX | 1 | от площади |
Фитинг для МП трубы евроконус | VT TA 4420 16(2,0)х¾” | от площади (1) | |
Сервопривод * | VT TE 3040 | 1 | 1 058.47 |
Термостат программируемый * | F151 | 1 | 2 940 |
Термостат электромеханический * | F257 | 1 | 604.3 |
* - опция
** - на выбор
Все авторские права защищены.
При копировании статьи ссылка на правообладателя и/или на сайт valtec.ru обязательна.